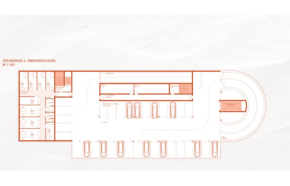
Werkstatt- und Parkgebäude, HVG Heilbronn 3. Preis 2015