Start
Projekte
Wettbewerbe
Büro
Auszeichnungen
Über Uns
Partner
Team
Offene Stellen
News
Aktuelles
Presse
Kontakt
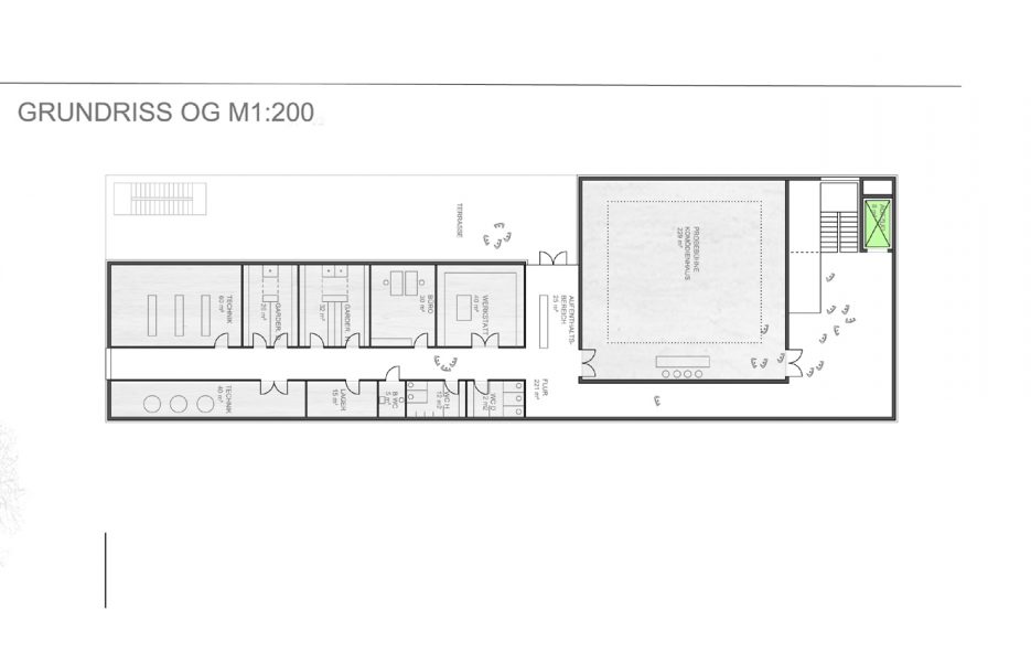
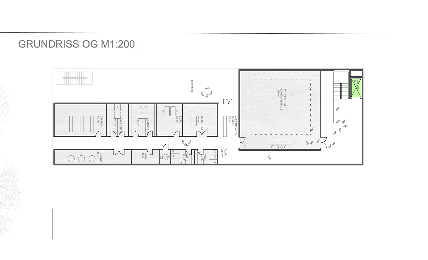
Probebühnen Theater Heilbronn 2.Preis
Wir verwenden Cookies, um Inhalte und Anzeigen zu personalisieren und zu analysieren. Bitte stimmen Sie der Verwendung unserer Cookies zu oder nutzen Sie das opt-out Verfahren.
Akzeptieren
Ablehnen
Mehr lesen
Schließen
Notwendig
immer aktiv